iroda
Szekszárd, Palánki út A ép. fszt. 41.
Adatok
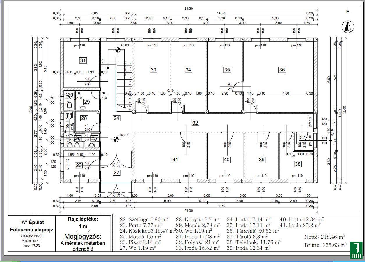
- Cím: Szekszárd, Palánki út 41. A ép. fszt.
- Értékesítés típusa: Kiadó
- Ingatlan típusa: iroda
- Méret: 25 m2
- Közművek: Víz, Csatorna, Gáz, Áram
- Ár: 1 600 Ft/m2/hó
Kapcsolattartó
- Neve: Szűcs Judit
- Email címe: jszucs@dbi.hu
- Telefonszáma: 06-30-445-0148
Leírás
A város északi határában lévő, kiváló közlekedéssel rendelkező telephelyen, utcafronti kétszintes irodaépületben irodák kiadók. Igény esetén A épületünkben, 83,26 m2 irodaterületet tudunk rendelkezésre bocsátani, de ezek mellett raktárakat, műhelyeket és szabad területet is kínálunk.
A épület, földszintén található 41. iroda helyiségünket önmagába is kínáljuk kiadásra, mely 25,2 nm.
A telephelyen 24 órás biztonsági portaszolgálat működik, mely a rezsidíjakkal együtt benne értendő a bérleti díjban.


