ipari ingatlan

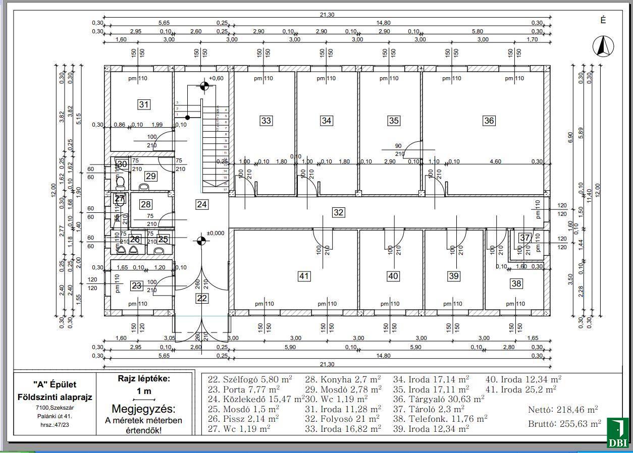
Szekszárd, Palánki út A ép. fszt. 38.

Adatok

Kapcsolattartó

Leírás

A város északi határában lévő, kiváló közlekedéssel rendelkező telephelyen, utcafronti kétszintes irodaépületben irodák kiadók. Igény esetén A épületünkben, 83,26 m2 irodaterületet tudunk rendelkezésre bocsátani, de ezek mellett raktárakat, műhelyeket és szabad területet is kínálunk.

A épület, földszintén található 38. raktár helyiségünket önmagába is kínáljuk kiadásra, mely 11,76 nm.

A telephelyen 24 órás biztonsági portaszolgálat működik, mely a rezsidíjakkal együtt benne értendő a bérleti díjban.

Kérjük, időpont egyeztetésért, további információért keresse kapcsolattartónkat.