iroda
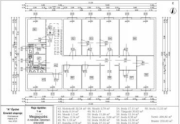
Szekszárd, Palánki út 41. (A épület, 8,36 m2)
Adatok
- Cím: Szekszárd, Palánki út 41. kiadó iroda 8,36 m2
- Értékesítés típusa: Kiadó
- Ingatlan típusa: iroda
- Méret: 8 m2
- Közművek: Víz, Csatorna, Gáz, Áram
- Ár: 1 600 Ft/m2/hó
Kapcsolattartó
- Neve: Szűcs Judit
- Email címe: jszucs@dbi.hu
- Telefonszáma: 06-30-445-0148
Leírás
Kiadásra kínáljuk szekszárdi telephelyünk A épületének emeletén egy 8,36 m2-es iroda helyiséget. A Palánki u. 41. alatt található irodából könnyen megközelíthető az M6-os autópálya.
Nagyobb igény esetén, összesen 246,23 m2 iroda helyiséget biztosítunk további bérlésre.
Telephelyünkön 24 órás portaszolgálat működik.
Bérleti díj: 1600 Ft/m2/hó+Áfa
Üzemeltetési díj: 200 Ft/m2/hó+Áfa (rezsivel)





