iroda
Szekszárd, Palánki út 41. (A épület, 54,13 m2)
Adatok
- Cím: Szekszárd, Palánki út 41. kiadó iroda 54,13 m2
- Értékesítés típusa: Kiadó
- Ingatlan típusa: iroda
- Méret: 54 m2
- Közművek: Víz, Csatorna, Gáz, Áram
- Ár: 1 600 Ft/m2/hó
Kapcsolattartó
- Neve: Szűcs Judit
- Email címe: jszucs@dbi.hu
- Telefonszáma: 06-30-445-0148
Leírás
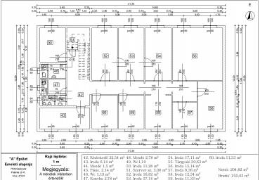
Szekszárd, Palánki út 41. szám alatti telephelyünkön az "A" épület első emeletén, három külön bejáratú, összesen 54,13 m2 alapterületű, légkondicionált, szalag parkettával ellátott irodánk kiadó.
További irodák bérlésére is van lehetőség, összesen 246 m2-ig.
Telephelyünkön irodákon kívül, raktár, műhely és szabad terület is bérelhető.
Bérleti díj: 1600 Ft/m2/hó+Áfa, amelybe a rezsiköltség is beletartozik
Üzemeltetési díj: 200 Ft/m2/hó+Áfa
További információért kérjük keresse munkatársunkat.







