iroda
Szekszárd, Palánki út 41. (A épület, 51,07 m2)
Adatok
- Cím: Szekszárd, Palánki út 41. kiadó iroda 51,07 m2
- Értékesítés típusa: Kiadó
- Ingatlan típusa: iroda
- Méret: 51 m2
- Közművek: Víz, Csatorna, Gáz, Áram
- Ár: 1 600 Ft/m2/hó
Kapcsolattartó
- Neve: Szűcs Judit
- Email címe: jszucs@dbi.hu
- Telefonszáma: 06-30-445-0148
Leírás
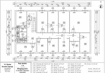
Szekszárd, Palánki u. 41. alatti telephelyünk "A" épületében kínáljuk kiadásra 52-53-54-es irodahelyiségeinket, melyek külön bejáratúak és összesen 51,07 m2 alapterületűek.
Irodáink légkondicionáltak és szalag parkettával vannak ellátva.
Telephelyünkön további irodák, akár 246 m2-ig, műhelyek, raktárak és szabadterület is bérelhető.
Bérleti díj: 1600 Ft/m2/hó+Áfa, amely tartalmazza a rezsi költségét
Üzemeltetési díj: 200 Ft/m2/hó+Áfa
További információért kérjük keresse munkatársunkat.




