iroda

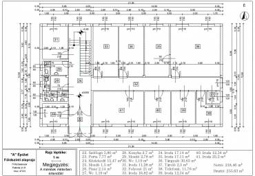
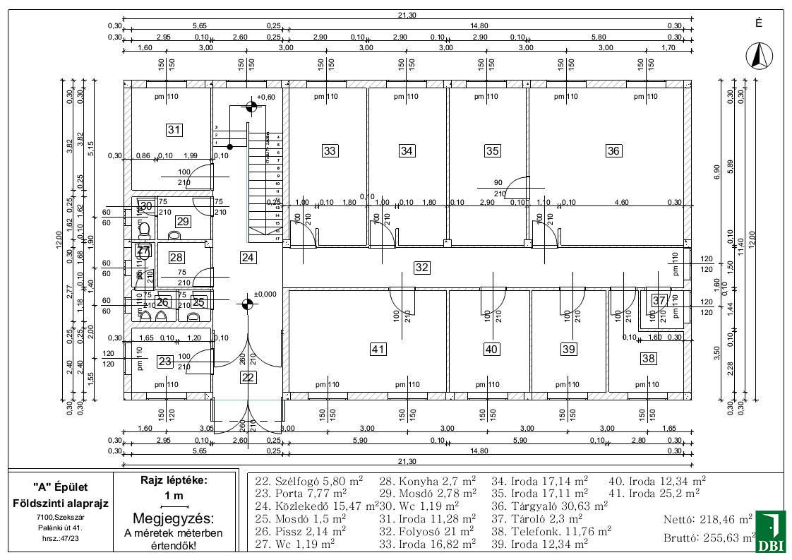
Szekszárd kiadó iroda (A/fsz. 33-34)

Adatok

Kapcsolattartó

Leírás

Szekszárd, Palánki u. 41. szám alatt fekvő telephelyünkön kínáljuk kiadásra 33-34. számú irodánkat az A épületben. Az irodák klimatizáltak és az 1600 Ft/m2/hó+Áfa bérleti díjba bele értendő a normál használatból adódó rezsi költség. Igény esetén akár 246,23 m2 iroda is bérelhető, továbbá raktárakat, műhelyeket és szabad területeket kínálunk kiadsára.
Telephelyünkön 0-24 órás portaszolgálat működik.
Amennyiben hirdetésünk felkeltette érdeklődését forduljon hozzánk bizalommal.