iroda
Szekszárd kiadó iroda (A/em. 50)
Adatok
- Cím: Szekszárd, Szekszárd, Palánki u. 41
- Értékesítés típusa: Kiadó
- Ingatlan típusa: iroda
- Méret: 11 m2
- Közművek: Víz, Csatorna, Gáz, Áram
- Ár: 1 600 Ft/m2/hó
Kapcsolattartó
- Neve: Szűcs Judit
- Email címe: jszucs@dbi.hu
- Telefonszáma: 06-30-445-0148
Leírás
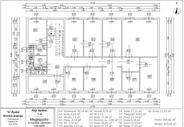
Kiadásra kiváljuk Szekszárd, Palánki u. telephelyünk A épületének emeletén található 50. számú irodánkat.
Az iroda légkondicionálóval és szalag parketta burkolattal van ellátva. Az 1600 Ft/m2/hó+Áfa bérleti díj tartalmazza a normál használatból adódó rezsi költséget is.
Lehetőség van további irodák, műhelyek, raktárak és szabad területe bérlésére.
Telephelyünkön 24 órás portaszolgálat működik.
Amennyiben hirdetésünk felkeltette érdeklődését forduljon hozzánk bizalommal.







