üzlethelyiség

Paks 70,57 m2 üzlethelyiség kiadó

Adatok

  • Cím: Paks, Barátság u. 3.
  • Értékesítés típusa: Kiadó
  • Ingatlan típusa: üzlethelyiség
  • Méret: 70 m2
  • Közművek: Víz, Csatorna, Gáz, Áram
  • Ár: 2 200 Ft/m2/hó

Kapcsolattartó

Leírás

FREKVENTÁLT HELYEN KIADÓ ÜZLETHELYISÉG!


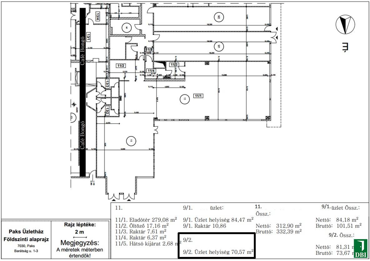
Pakson, a lakótelep központjában, a Művelődési Házzal szemben a Barátság u. 3. szám alatt található jól bejáratott Üzletházunkban bérlésre kínálunk egy üveges portállal rendelkező, 70,57 m2-es (alaprajzon 9/2-es sz.) üzlethelyiséget.
A kiadandó helyiség hidegburkolattal ellátott, könnyen takarítható, közvetlen utcai bejárattal. (Személyzeti bejárat, rakodó terület az épület belső folyosóján keresztül érhető el.) Az üzlet hosszúkás, jól polcozható, de kiválóan kialakítható akár ügyfél térként is. Méretei: 3,85 m * 18,33 m. Adottságai miatt könnyen kialakítható üzleten belül egy kis raktár rész is.
Az üzlet előtt kb. 1 méteres részt előtető védi.

Az üzletház a lakótelep legforgalmasabb részén található, a központi tér része. A szomszéd üzletek 15 éve működnek, jelentős törzsvásárlói körrel. A környéken nagy a gyalogos forgalom, az atomerőműves és helyi járatok megállói is itt találhatóak.

A helyiséget elsősorban szolgáltatóknak ajánlanánk. (Sajnos vendéglátóegységnek, vegyeskereskedésnek, ruha üzletnek nem tudjuk kiadni.)

A fogyasztást mérőórával mérjük és a mindenkori aktuális egységáron továbbszámlázzuk a bérlő felé.

Ingatlan bérleti díja: 2.200 Ft/m2/hó+ÁFA, azaz összesen 155.254 Ft/hó+ÁFA.

Megtekintésért, további részletekért, bizalommal keresse kapcsolattartónkat!