iroda
Kiadó iroda Budapest 13. kerületében
Adatok
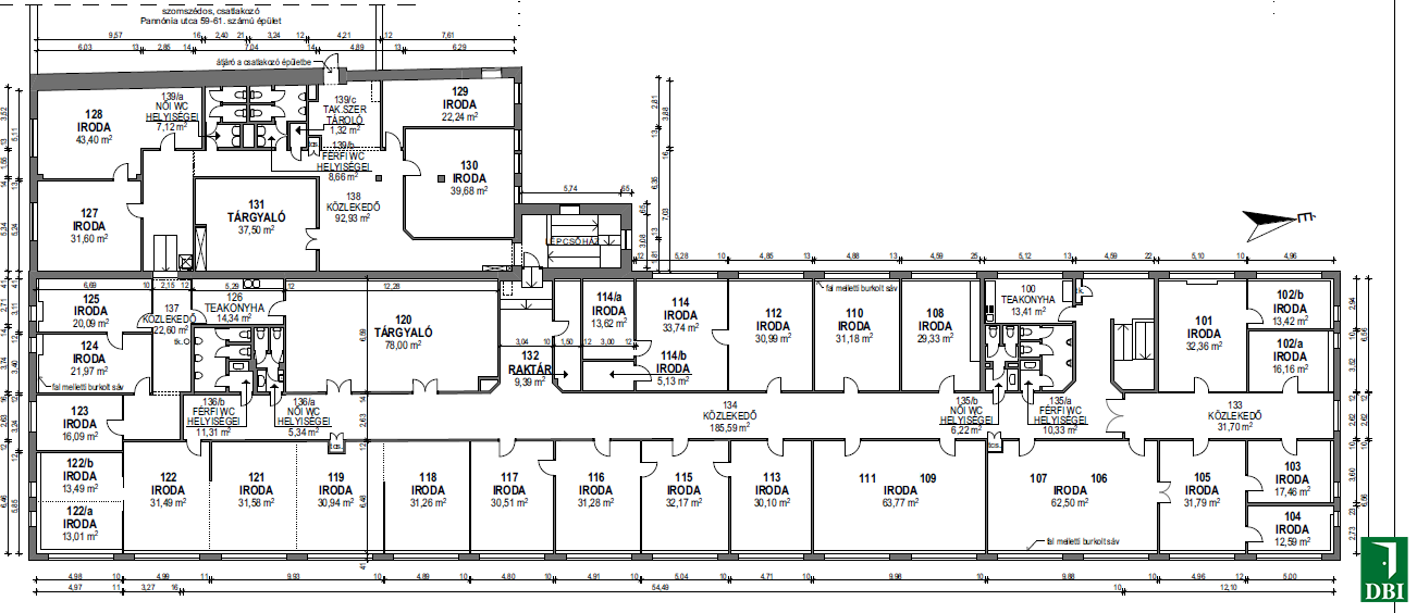
- Cím: Budapest, XIII. Gogol u. 13., kiadó irodahelyiség
- Értékesítés típusa: Kiadó
- Ingatlan típusa: iroda
- Méret: 30 m2
- Közművek: Víz, Csatorna, Áram, Távhő
- Ár: 3 590 Ft/m2/hó
Kapcsolattartó
- Neve: Koroknay Martin
- Email címe: mkoroknay@dbi.hu
- Telefonszáma: 06-30-445-0148
Leírás
Újlipótvárosban, a Gogol 13 Irodaház 1. emeletén kiadó egy 30 m2 alapterületű irodahelyiség.
Az ingatlan megközelíthetősége kiváló, mind a Lehel tértől (M3-as metró), mind pedig a Duna parttól pár perc sétával elérhető, továbbá a közelben áll meg a 15 és 115 sz. busz és a 75-ös troli.
A házban a biztonsági rendszert élő erős őrzés, beléptető rendszer, recepció és portaszolgálat biztosítja 24 órában.
Irodaházunkban alkalmi tárgyaló bérlésre is lehetőség van.
Az emeleten két mosdóblokk és egy közös használatú jól felszerelt konyha van.
A bérleti díjon túl üzemeltetési díjat szükséges fizetni, mely tartalmazza az irodaház nyújtotta szolgáltatásokat. A felhasznált áram továbbszámlázásra kerül.
Iroda bérleti díja: 3590,- Ft/m2/hó+ÁFA
Üzemeltetési díja: 1.911,- Ft/m2/hó+ÁFA
A hirdetésben feltüntetett díjak nettóban értendők.
A szabad férőhelyektől függően kültéri parkolóhely is bérelhető az irodához, sorompóval zárt parkolóudvarban.
Kérjük, hogy további információért keresse munkatársunkat!



